
Freistehendes Einfamilenhaus

ca. 91 m²

ca. 875 m²

4
Objektnummer:
617

Informationen zum Grundstück
Ort:
Benshausen
Grundstück:
Größe: ca. 875 m²
Gestalt und Form:straßenseitig rechteckig, hinterer Teilbereich verjüngt, von der Straße ansteigend
Erschließung:
Strom, Wasser/ Abwasser, Kanalanschluss, Gas, Telefon/ Internet über Kabelanschluss
Straßenart: Anliegerstraße, Sackgasse
Zufahrt: Asphalt
Außenbereich:
Zuwegung:
Betonsteintreppe, 12 Steinstufen, mit einseitigen Stahlgeländer
restliche Zuwegung = Pflaster
Zugang zum Gartenbereich = Steintreppe, 10 Stufen mit
einseitigen Handlauf, Stahlgeländer, gestrichen
Einfriedung:
bepflanzter Vorgarten, Pflanzringe
Grundstück = Naturzaun, Holz- und Maschendrahtzaun
Art:
Einfamilienhaus

Gebäudebeschreibung allgemein
Freistehendes Einfamilienhaus, eingeschossig, ausgebautes Dachgeschoss, vollunterkellert
Baujahr: ca. 1940
Konstruktionsart: Massivbau
Fassade:
Sockelbereich = Klinkersteine, gestrichen
Eternitschindeln
Dach:
Satteldach
Dacheindeckung = Tonziegel
Spenglerarbeiten = Aluminium
Fenster:
Holzverbundfenster, alt
Fensterbänke innen: Terrazzo
Fensterbänke außen: Stein, Blech
Elektro: Leitungssystem Aluminium alt
Eingänge:
Hauseingang = PVC-Sicherheitstür mit Glasausschnitt, Kassette, überdacht, Zugang über zwei Steintreppen
Kellereingang = Holztür mit Glasausschnitt, überdacht

Gebäudebeschreibung innen
Aufteilung:
Kellergeschoss: Flur, Bad, Heizungsraum, 2 Kellerräume
Erdgeschoss: Flur, WC, Esszimmer, Wohnzimmer, Küche, Speisekammer
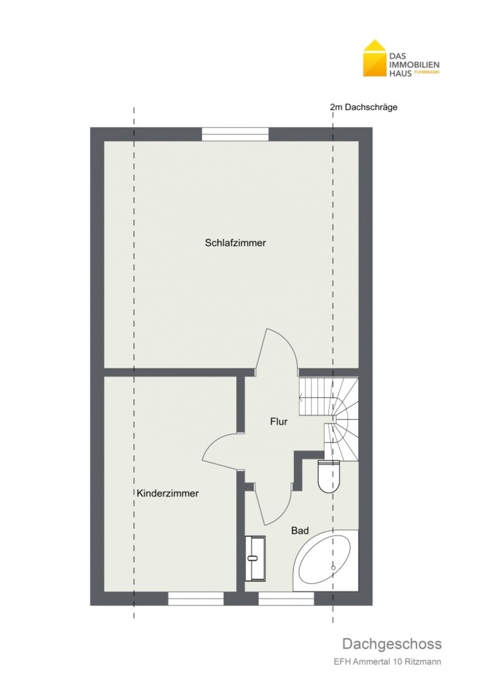
Dachgeschoss: Flur, Schlafzimmer, Kinderzimmer, Bad,
Innenausstattung:
Bodenbeläge:
Kellergeschoss = Beton, Bad, Flur = Fliesen
Erdgeschoss = Küche, Flur, WC = Fliesen
Mosaikparkett
Dachgeschoss = aufgearbeitete Holzdielen, versiegelt,
Bad = Fliesen
Wandbekleidung:
Wohnbereich = Tapete
Bad und WC = Fliesen, Tapete
Küche = Fliesenspiegel
Innentüren: überwiegend Holzkassettentüren, teilweise mit Glasausschnitt
Treppen:
Kellergeschoss = Beton, gefliest
Erdgeschoss = aufgearbeitete Holztreppe, beidseitiger
Handlauf, Stufenschoner
Sanitär:
Kellergeschoss = Bad mit Wanne, Dusche, Waschbecken
Erdgeschoss = WC, Handwaschbecken
Dachgeschoss = Bad mit Eckwanne, WC und Waschbecken, Spiegelschrank, Handtuchheizkörper
Wärmeversorgung:
Ölheizung der Fa. Klöckner mit Warmwasserspeicher
3 Öltanks a 1000 Liter, Plattenheizkörper
Warmwasser: über Heizung

Nebengebäude
Geräteschuppen = Massivbau mit Fenster, 2 Räume, Dachboden (Zugang vom Grundstück), Stromanschluss
Dacheindeckung = Tonziegel, Spenglerarbeiten = Blech
Garage, Massivbau mit Vordach, verputzt, Sockelbereich = Zierblendersteine, gestrichen
Einfahrt gepflastert, Gargentor = zweiflügeliges Holztor mit Glasausschnitt,
separater Zugang Holzeingangstür mit Glasausschnitt, Dacheindeckung = Bitumenschweißbahnen
Kfz-Abstellmöglichkeit:
Garage

Energieausweis
Energieausweis:
Energieausweis liegt für das Gebäude vor
Erstellungsdatum:
ab 1. Mai 2014 (EnEV 2014)
Energieausweistyp:
Bedarfsausweis
Endenergiebedarf:
340,67 kwh/(m2*a)
Energieeffizienzklasse:
H
Wesentlicher Energieträger:
Öl
Baujahr:
1993
Heizungsart:
Öl- Heizung

Konditionen
Kaufpreis:
110.000,00 €
Provision:
3,57 % inkl. 19 % MwSt.

Kontakt


