
Freistehendes Einfamilienhaus

ca. 133,52 m²

ca. 183 m²

6
Objektnummer:
627

Informationen zum Grundstück
Ort:
Ortsteil Dietzhausen
Grundstück:
terrassenartig, hangig, über Steinstufen mit Stahlgeländer erreichbar, Pflanzsteine, kleiner Freisitz mit Aussicht
Einfriedung: Maschendrahtzaun
Art:
Einfamilienhaus

Gebäudebeschreibung allgemein
freistehendes Einfamilienhaus, zweigeschossig mit ausgebautem Dachgeschoss, Spitzboden, teil unterkellert
Baujahr: ca. 1900, Aufstockung/ Rekonstruktion: 1950
Konstruktionsart: Fachwerk, ausgemauert, teilweise Klinkersteinwände
Fassade:
Sockel = Silikatputz
verputzt, gestrichen, gedämmt, ca. 6 cm
Dach:
Walmdach, Dacheindeckung = lasierte Dachziegel, 2010
Schneefangbalken
Schornsteineinfassungen = gemauert und geschiefert
Spenglerarbeiten = Kupfer
Fenster:
Holzverbundfenster, Isolierverglasung, 1994
Fensterbänke innen = Werzalit
Fensterbänke außen = Granit
Elektroinstallation:
nach DIN und VDE-Vorschriften, Kupferleitungen, Sicherungskasten je Etage abgesichert
Wärmeversorgung: Gasheizung, Fa. Brötje, 2022; Plattenheizkörper
Warmwasser: über Heizung
Sonstiges: Die Einbauküche ist im Kaufpreis enthalten.

Gebäudebeschreibung innen
Aufteilung der Räume:
Erdgeschoss:
Flur/ Treppenhaus, WC, Zimmer 1, Abstellraum mit Zugang zum Kellerraum, Abstellraum 2 von außen begehbar
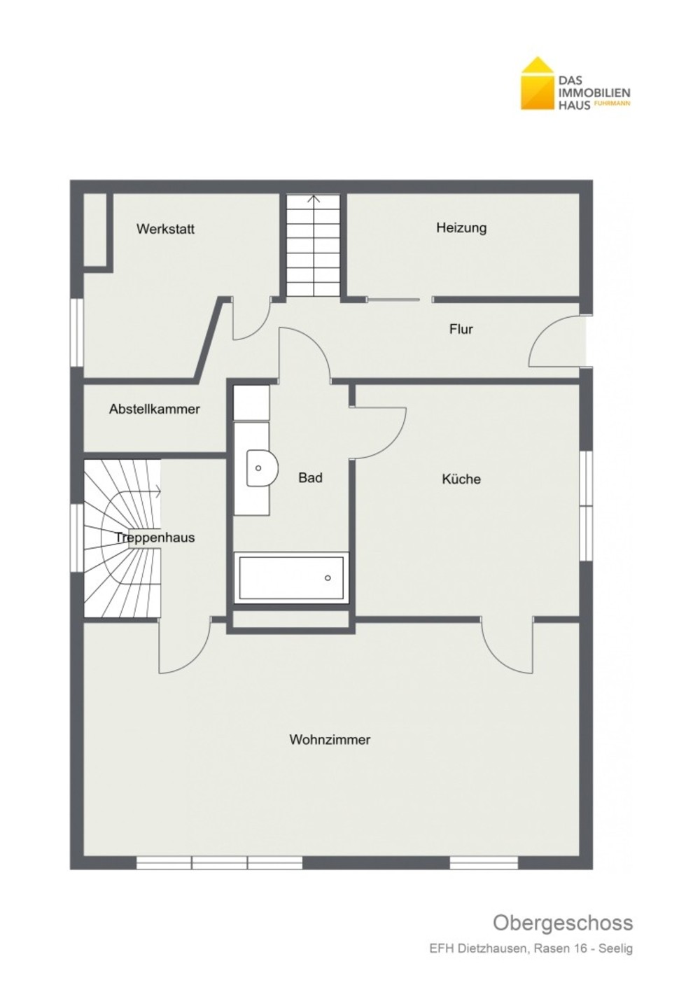
Obergeschoss:
Flur/ Treppenhaus, Wohnzimmer, Küche, Bad, Flur, Abstellkammer, Heizung, Werkstatt
Dachgeschoss:
Flur/ Treppenhaus, 2 Zimmer, Kinderzimmer, Schlafzimmer, Bad, Durchgang
Innenausstattung:
Bodenbeläge:
EG: Flur/ Treppenhaus, WC, Abstellraum = Fliesen
Zimmer 1 = Teppichboden
OG: Treppenhaus, Wohnzimmer, Küche = Laminat
Bad = Fliesen
Flur, Heizungsraum, Werkstatt, Abstellkammer = Terrazzoplatten
DG: Flur/ Treppenhaus, Kinderzimmer, Zimmer 1 = Laminat
Durchgang = Linoleum
Schlafzimmer, Zimmer 2 = Teppich
Bad = Fliesen
Spitzboden = Holzdielen
Treppe: Holz, einseitiger Handlauf, Treppenlift
Innenwände:
massiv im Erdgeschoss
Holzfachwerk, ausgemauert im Ober- und Dachgeschoss
Decken: Holzbalkendecken
Innentüren:
teilweise Echtholzkassettentüren, teilweise Holzfülltüren mit Glasausschnitt
Schiebetür
Sanitär:
EG: WC
OG: Bad mit Wanne, Waschtisch, Spiegelschrank, Handtuchheizkörper
DG: Bad mit Dusche, WC und Handwaschbecken

Nebengebäude
Die überdachte Abstellfläche in Holzbauweise mit ca. 7 m² auf dem gegenüberliegenden Grundstück ist derzeit von der Stadt Suhl gepachtet.
Kfz-Abstellmöglichkeit:
öffentlich

Energieausweis
Energieausweis:
Energieausweis liegt zur Besichtigung vor
Erstellungsdatum:
Keine Angabe
Energieausweistyp:
Verbrauchsausweis
Endenergiebedarf:
kwh/(m2*a)
Energieeffizienzklasse:
keine Angabe
Wesentlicher Energieträger:
Gas
Baujahr:
2022
Heizungsart:
Gas- Heizung

Konditionen
Kaufpreis:
99.000,00 €
Provision:
3,57 % inkl. 19 % MwSt.

Kontakt


