
Reihenmittelhaus auf 3 Etagen

ca. 172 m²

ca. 291 m²

9
Objektnummer:
652

Informationen zum Grundstück
Ort:
Ortsteil Zella
Grundstück:
Größe: ca. 291 m²
Gestalt und Form: rechteckig, ebenerdig
Erschließung:
Strom, Wasser/Abwasser, Kanalisation, Gas, Telekom, SAT-Anlage
Straßenart: Anliegerstraße, Asphalt
beidseitig gepflasterter Gehweg
Außenanlagen:
Vorgarten mit Wiese und Gehwegplatten, (optional für Stellplätze)
Einfriedung: Holzzaun
Gartenbereich mit Grillplatz und Wäscheleinen, Wege = gepflastert
Art:
Einfamilienhaus

Gebäudebeschreibung allgemein
Art: Ein- bis Zweifamilienhaus als Reihenmittelhaus zweigeschossig mit ausgebautem Dachgeschoss, vollunterkellert, nicht ausgebauter Spitzboden
Baujahr: 1923
Fundament: Streifenfundament, Beton
Konstruktionsart: Fachwerk
Kellerwände: Naturstein, straßenseitig mit ca. 30 cm Betonwand abgedichtet
Wände: Fachwerk, teilweise ausgemauert
Fassade:
gedämmt, verputzt, gestrichen (1998)
Giebel = Eternitschindeln, gestrichen
Dach:
erweitertes Satteldach mit ausgestellten Gauben (1998), Dacheindeckung = Tonziegel
Spenglerarbeiten = Kupfer
im Anbau Pultdach = Stehfalzblech
Fenster:
PVC mit 2-fach Isolierverglasung (2015)
Anbau = Holzverbund
Elektro:
Leitungssystem überwiegend alt, teilweise erneuert, Sicherungskasten erneuert
Zuwegung = Granittreppe und Feinsteinwegplatten, Edelstahlgeländer (2014), gemeinsame Nutzung mit dem Nachbarn
Heizung: zwei Gasetagenheizungen (1998), Wandheizkörper
Warmwasser: über Heizung

Gebäudebeschreibung innen
Gebäudebeschreibung innen:
Wohnfläche ca.: 172,00 m²
Nutzfläche ca.: 62,00 m²
Aufteilung:
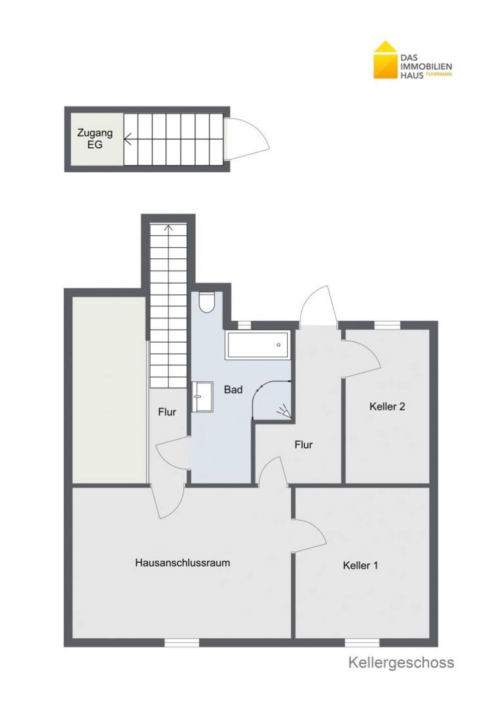
KG: Flur, Bad, 2 Kellerräume, Hausanschlussraum
EG: Flur, Anbau (Zugang in den Garten), Diele, Küche, Wohnzimmer, zwei Schlafzimmer, WC
OG: Treppenhaus, WC, Diele, Küche, Kinderzimmer, Wohnzimmer, Schlafzimmer
DG: Treppenhaus, Diele, Bad, Büro, Wohnzimmer, Kinderzimmer
Bodenbeläge:
Flur, Bad, Keller 1, Keller 2, Diele EG = Fliesen
Wohnbereiche = Laminat, Teppich, Holzdielen
teilweise bereits Bodenaufbau mit Spanplatten
Decken: Tapete, Styropor, Holzpaneele
Wandbekleidung:
Bad, Keller 1 = Fliesen
WC´s = Holzvertäfelung
Wohnbereiche überwiegend Tapete, teilweise Putz, Holzpaneele
Innentüren:
Holztüren, lackiert bzw. gestrichen
Etagen-Eingangstüren = Holz mit Glasausschnitt und Festglaselementen
Sanitär:
KG: Bad mit Wanne, Eckdusche, WC und Waschtisch
Keller 2 = Waschbecken
EG: separates WC
OG: separates WC
DG: separates WC, Bad mit Waschbecken
Treppe:
Kellergeschoss = Beton
massive Holztreppe teilweise mit PVC-Belag, teilweise lackiert
Handlauf = Holz

Nebengebäude
massive Werkstatt mit zweiflügligem Holztor,
Flachfach = Blech, Spenglerarbeiten = Kupfer
anschließend eine überdachte Lagerfläche
Kfz-Abstellmöglichkeit:

Energieausweis
Energieausweis:
Energieausweis liegt für das Gebäude vor
Erstellungsdatum:
ab 1. Mai 2014 (EnEV 2014)
Energieausweistyp:
Bedarfsausweis
Endenergiebedarf:
109,64 kwh/(m2*a)
Energieeffizienzklasse:
D
Wesentlicher Energieträger:
Gas
Baujahr:
1998
Heizungsart:
Etagenheizung

Konditionen
Kaufpreis:
89.000,00 €
Provision:
3,57 % inkl. 19 % MwSt.

Kontakt


